找回密码
 立即注册

便捷登录,只需一步

扫码登录更安全

搜索
查看: 16836|回复: 12

[装修活动] 免费线上户型解析活动重磅来袭!你家装修疑问这有设计师免费为你解答!

[复制链接]

1万

回帖

3万

威望

7万

金币

版主

版主勋章社区居民忠实会员社区劳模高中毕业证书初中毕业证书小学毕业证书余论老网友劳资更有钱余论著名评论家

发表于 2020-6-9 16:19:43 | 显示全部楼层 |阅读模式  IP 属地:中国–浙江–温州
本帖最后由 装修小编 于 2022-6-24 14:59 编辑

余姚生活网装修频道第九期
   免费线上户型解析活动   
开!始!啦!  
630线上.jpg
拿到新房的你是不是很高兴,
可是不会装修又让你暗自发愁?
每天为工作奔波的你,
是不是没有时间去了解自己家的户型?
再看回空空如也的毛坯新房
甚至不知道自己的家能装修成什么样子?
告诉大家一个好消息
28.gif
升级版免费线上户型解析会来啦!
这期我们将邀请广东华浔品味装饰的设计师
线上微信视频的方式为你答疑解惑
找正规公司设计师
进行超细心的讲解
让你对的家了如指掌!
让你的疑问有所解答!
10爱心.jpg

       简介:线上户型解析活动,是余姚生活网为广大即将装修的余姚地区业主朋友,提供的免费家装服务。通过微信群视频的方式在网上与设计师进行交流,只要您有户型设计的困惑,均可以来报名哦~

【解析时间】:2020年6月24日 下午12:00准时开始
【解析方式】线上微信视频的方式(需要建立微信群 ,所以报名后务必加小编微信:61378607)
【活动对象】:所有需要装修的业主
【活动费用】:免费
【解析数量】:解析3户
【解析单位】:华浔品味装饰
【解析人员】:黄一凡

【报名方式】:填写下方报名表报名

—————————————————————————————————————————————————————————————————
温馨提醒:

     1、参与小区仅限余姚哦,小编会与你联系,设计师会提前为您量房。

     2、报名完毕后一定要加小编微信(61378607)。

   3、被通知参加解析的网友一定要保证微信上线,一户30——40分钟左右。

必须要提前报名哦,以便小编联系安排各项事宜,如有不便敬请谅解!
—————————————————————————————————————————————————————————————————
微信图片_20200521144030.png

21年,200多座城市,300多家直营公司,300多万客户的选择。
中国优秀的领军装饰品牌,国内规模大型的家装直营品牌公司。
进驻余姚6年来,华浔人一直注重环保、高品质的装修理念,
坚持“做一个工程,树一个样板”为宗旨,做良心工程,
为姚城人民做信赖的装饰。


微信图片_20200521144022.jpg


12.jpg

余姚公司地址
四明西路406-408号(余姚中学旁)

联系方式
62591278   13656882511(微信同号)

11太阳.gif 设计师简介 11太阳.gif

微信图片_20200609155304.jpg

黄一凡
装修公司:余姚华浔品味装饰公司
公司职位:首席设计师
设计工龄:14
设计理念:艺术是生活的升华  设计是艺术的呈现

个人经历:2007-2009广州华浔品味装饰广州公司  
                2010-2013广州华浔品味装饰重庆公司
                2014-2016广州华浔品味装饰上海公司
                2017至今广州华浔品味装饰余姚公司

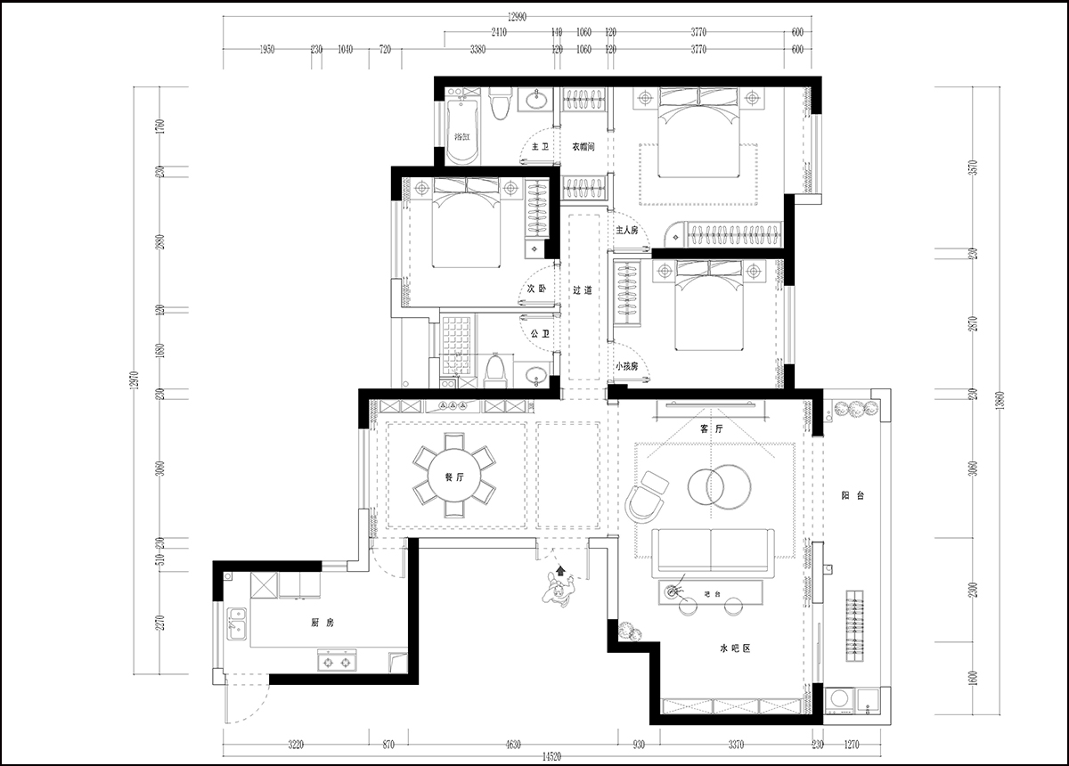
设计案例:绿城三期 四期 中梁首府 金麟府 星光御墅 太守名府

11太阳.gif   设计作品 11太阳.gif

中梁首府
3.jpg

2.jpg

1.jpg


201007020956563415.jpg

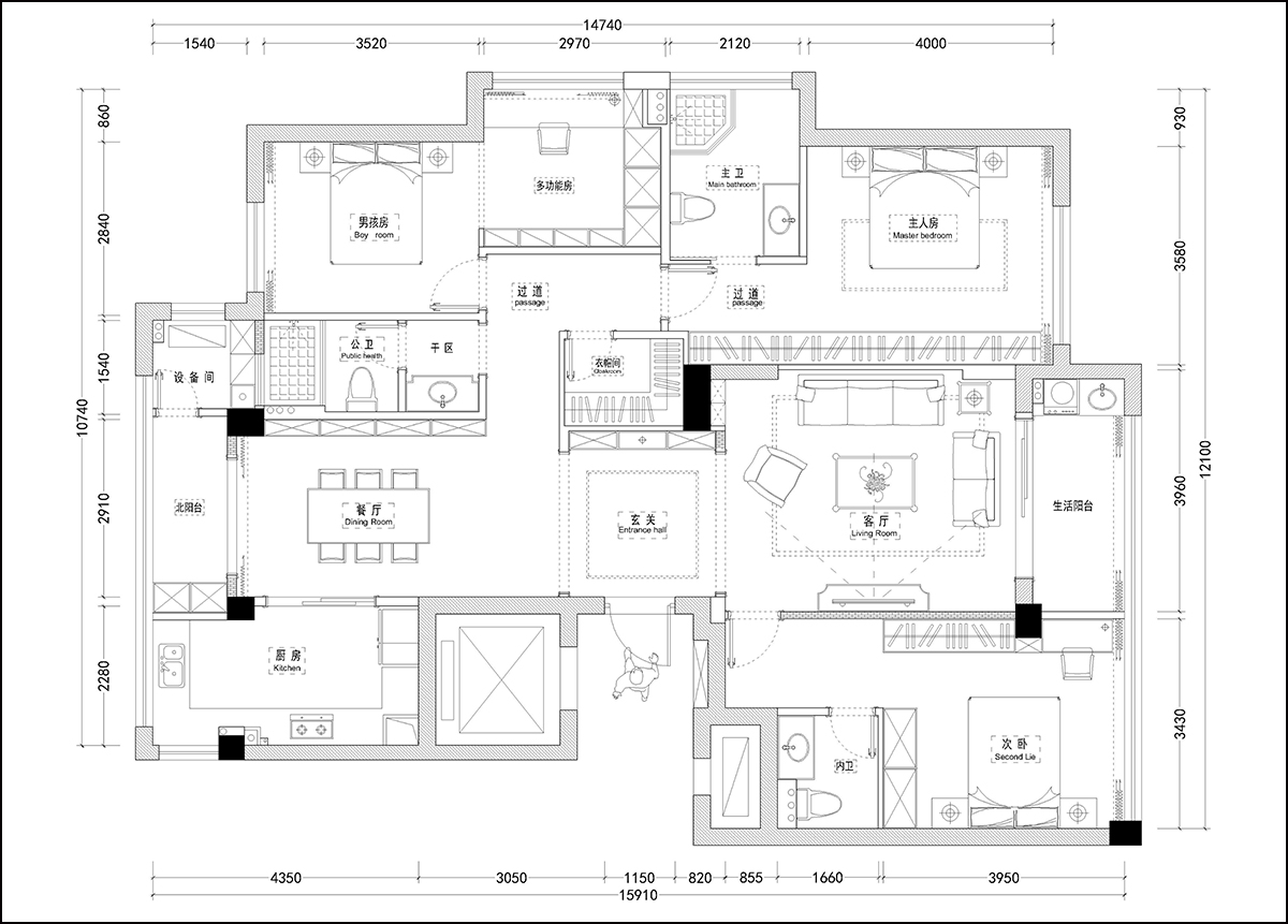
金麟府
微信图片_20200609160646.jpg

1.jpg

2.jpg


201007020956563415.jpg

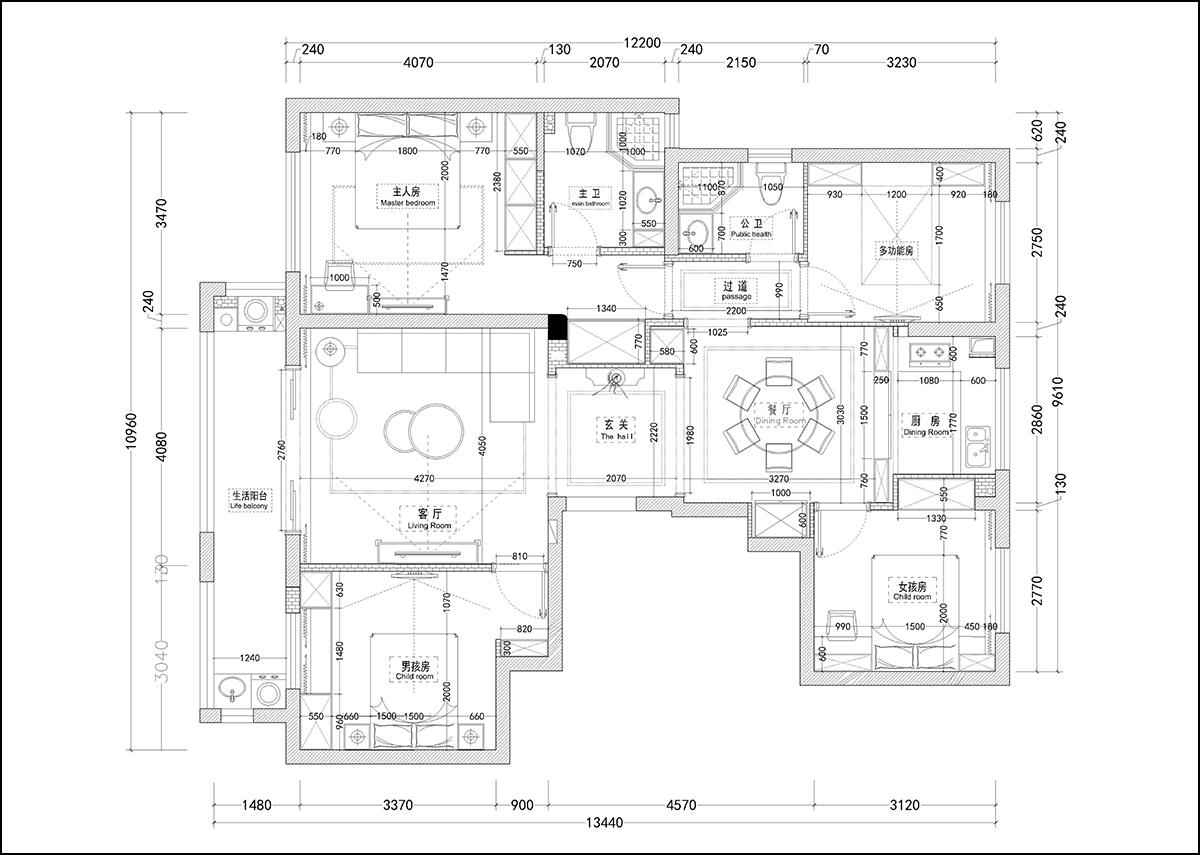
绿城三期
微信图片_20200609160949.jpg

2.jpg

3.jpg


回复

使用道具 举报

659

回帖

2116

威望

506

金币

大学一年级

社区居民忠实会员

发表于 2020-6-10 13:33:09 | 显示全部楼层  IP 属地:中国–浙江–温州
顶一个
回复

使用道具 举报

614

回帖

1899

威望

497

金币

大学一年级

社区居民忠实会员

发表于 2020-6-10 16:28:45 | 显示全部楼层  IP 属地:中国–浙江–温州
哦豁,不错
回复

使用道具 举报

406

回帖

1256

威望

2290

金币

高中一年级

发表于 2020-6-11 13:32:06 | 显示全部楼层  IP 属地:中国–浙江–温州
顶一个
回复

使用道具 举报

2115

回帖

5263

威望

732

金币

大学四年级

发表于 2020-6-13 13:28:14 | 显示全部楼层  IP 属地:中国–浙江–温州
回复

使用道具 举报

1万

回帖

3万

威望

7万

金币

版主

版主勋章社区居民忠实会员社区劳模高中毕业证书初中毕业证书小学毕业证书余论老网友劳资更有钱余论著名评论家

 楼主| 发表于 2020-6-13 13:51:36 | 显示全部楼层  IP 属地:中国–浙江–温州

有需要的可以报名哦
回复

使用道具 举报

381

回帖

1300

威望

421

金币

高中二年级

手机达人社区居民忠实会员

发表于 2020-6-13 14:39:41 | 显示全部楼层  IP 属地:中国–浙江–温州
为啥以前没有啊
回复

使用道具 举报

226

回帖

692

威望

132

金币

初中三年级

发表于 2020-6-17 16:17:31 | 显示全部楼层  IP 属地:中国–浙江–温州
好活动
回复

使用道具 举报

345

回帖

902

威望

243

金币

初中三年级

社区居民忠实会员

发表于 2020-6-18 16:22:33 | 显示全部楼层  IP 属地:中国–浙江–温州
回复

使用道具 举报

167

回帖

487

威望

144

金币

初中二年级

发表于 2020-6-19 14:13:53 来自手机 | 显示全部楼层  IP 属地:浙江
报名了,然后呢?
回复

使用道具 举报

1万

回帖

3万

威望

7万

金币

版主

版主勋章社区居民忠实会员社区劳模高中毕业证书初中毕业证书小学毕业证书余论老网友劳资更有钱余论著名评论家

 楼主| 发表于 2020-6-19 14:29:03 | 显示全部楼层  IP 属地:中国–浙江–温州

记得加小编微信61378607
回复

使用道具 举报

72

回帖

1067

威望

395

金币

高中一年级

发表于 2020-6-22 19:01:19 | 显示全部楼层  IP 属地:中国–浙江–宁波
凡哥最帅
回复

使用道具 举报

451

回帖

1461

威望

257

金币

高中二年级

发表于 2020-6-23 15:52:29 | 显示全部楼层  IP 属地:中国–浙江–温州
能旁听吗
回复

使用道具 举报

您需要登录后才可以回帖 登录 | 立即注册

本版积分规则

关闭

余姚论坛推荐上一条 /1 下一条

宁波市网络警察工作室 宁波市网络警察工作室

浙公网安备 33028102000108号

举报电话|反馈|Archiver|手机版|小黑屋|余姚论坛 ( 浙B2-20110426-4 )

GMT+8, 2025-11-3 07:48 , Processed in 0.082646 second(s), 16 queries , Redis On.

Powered by Discuz! X3.5

© 2001-2025 Discuz! Team.

快速回复 返回顶部 返回列表
下载明生活客户端
下载浙江政务服务客户端