找回密码
 立即注册

便捷登录,只需一步

扫码登录更安全

搜索
查看: 16624|回复: 26

[装修活动] 设计你的专属HOUSE !全新免费线上户型解析:足不出户解答你的设计疑问! 

  [复制链接]

1万

回帖

3万

威望

7万

金币

版主

版主勋章社区居民忠实会员社区劳模高中毕业证书初中毕业证书小学毕业证书余论老网友劳资更有钱余论著名评论家

发表于 2020-5-22 09:48:22 | 显示全部楼层 |阅读模式  IP 属地:中国–浙江–温州
本帖最后由 装修小编 于 2022-6-24 13:56 编辑

余姚生活网装修频道第八期
     免费线上户型解析活动     
开!始!啦!  

    拿到新房的你是不是很高兴,可是不会装修又让你暗自发愁?每天为工作奔波的你,是不是没有时间去了解自己家的户型?再看回空空如也的毛坯新房,甚至不知道自己的家能装修成什么样子?告诉大家一个好消息,升级版线上户型解析来啦!

     简介:线上户型解析活动,是余姚生活网为广大即将装修的余姚地区业主朋友,提供的免费家装服务。通过微信群视频的方式在网上与设计师进行交流,只要您有户型设计的困惑,均可以来报名哦~


这期我们将邀请广东华浔品味装饰的设计师
线上微信视频的方式为你答疑解惑

12.jpg

【报名方式】:填写下方报名表报名
【解析时间】:2020年6月6日 下午13:00准时开始
【解析方式】线上微信视频的方式(需要建立微信群 ,所以报名后务必加小编微信:61378607)
【活动对象】:所有需要装修的业主
【活动费用】:免费
【解析数量】:解析3户
【解析单位】:华浔品味装饰
【解析人员】:余歌

—————————————————————————————————————————————————————————————————
温馨提醒:

     1、参与小区仅限余姚哦,小编会与你联系,设计师会提前为您量房。

     2、报名完毕后一定要加小编微信(61378607)。

   3、被通知参加解析的网友一定要保证微信上线,一户30——40分钟左右。

必须要提前报名哦,以便小编联系安排各项事宜,如有不便敬请谅解!
—————————————————————————————————————————————————————————————————


21年,200多座城市,300多家直营公司,300多万客户的选择。
中国优秀的领军装饰品牌,国内规模大型的家装直营品牌公司。
进驻余姚6年来,华浔人一直注重环保、高品质的装修理念,
坚持“做一个工程,树一个样板”为宗旨,做良心工程,
为姚城人民做信赖的装饰。


微信图片_20200521144022.jpg


12.jpg

余姚公司地址
四明西路406-408号(余姚中学旁)
联系方式
62591278   13656882511(微信同号)


11星.jpg   设计师简介 11星.jpg
微信图片_20200521144005.jpg

余歌
装修公司:余姚华浔品味装饰公司
公司职位:主案设计师
设计工龄:12
设计理念:设计源于生活,艺术服务于人

个人经历:2008-2010年广州华浔品味装饰上海公司
                2011-2013年广州华浔品味装饰北仑公司
                2014年至今广州华浔品味装饰余姚公司

设计案例:绿城明园、金麟府、星光御墅、金地澜悦、君悦国际、万里世纪豪庭


11太阳.gif   设计作品 11太阳.gif

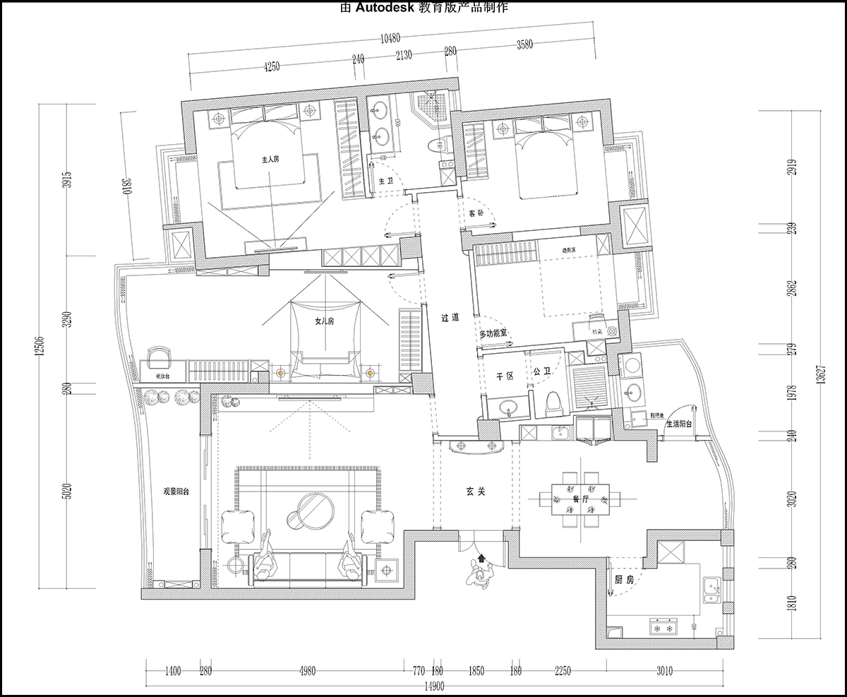
姚江怡景

姚江怡景.jpg

微信图片_20200522092638.jpg

微信图片_20200522092649.jpg


090442nxvcn84b4cc873d8.jpg.thumb.jpg

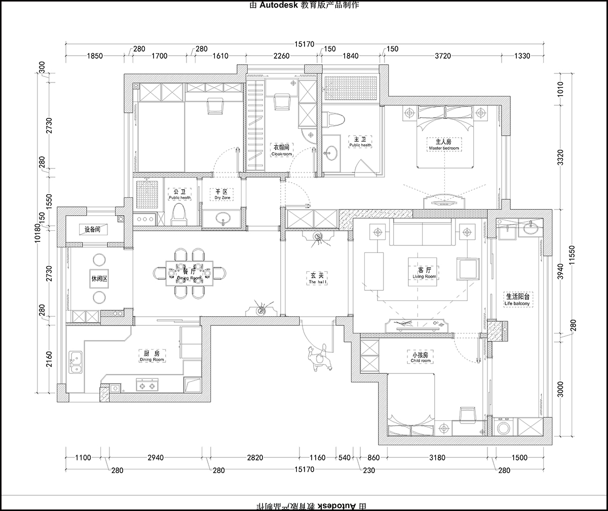
星光御墅

星光御墅.jpg

1.jpg

2.jpg


090442nxvcn84b4cc873d8.jpg.thumb.jpg

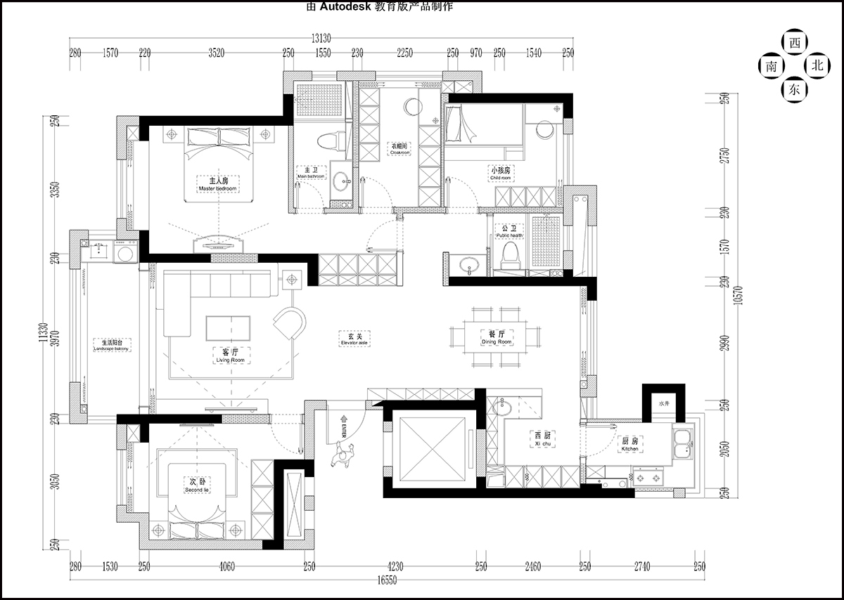
绿城三期

3.jpg

091109bwncgah2hrmb1rag.jpg.thumb.jpg

092218hk0b7rs66b8mk0vz.jpg.thumb.jpg


回复

使用道具 举报

588

回帖

1460

威望

414

金币

高中二年级

发表于 2020-5-23 14:58:47 | 显示全部楼层  IP 属地:中国–浙江–温州
设计的不错啊
回复

使用道具 举报

719

回帖

1833

威望

1439

金币

大学一年级

发表于 2020-5-23 18:51:59 来自手机 | 显示全部楼层  IP 属地:浙江
绿城的堵应急门是什么操作?
回复

使用道具 举报

719

回帖

1833

威望

1439

金币

大学一年级

发表于 2020-5-23 21:25:51 来自手机 | 显示全部楼层  IP 属地:浙江

星光和绿城差不多就是左右镜像了一下。这俩户型本身就差不多。
回复

使用道具 举报

400

回帖

1156

威望

233

金币

高中一年级

发表于 2020-5-30 14:27:36 | 显示全部楼层  IP 属地:中国–浙江–温州
不错啊,好活动
回复

使用道具 举报

1万

回帖

3万

威望

7万

金币

版主

版主勋章社区居民忠实会员社区劳模高中毕业证书初中毕业证书小学毕业证书余论老网友劳资更有钱余论著名评论家

 楼主| 发表于 2020-5-30 14:33:32 | 显示全部楼层  IP 属地:中国–浙江–温州

有兴趣可以报名参加哦
回复

使用道具 举报

609

回帖

1554

威望

463

金币

高中三年级

发表于 2020-5-30 14:34:28 | 显示全部楼层  IP 属地:中国–浙江–温州
报名了,小编选我
回复

使用道具 举报

762

回帖

2012

威望

739

金币

大学一年级

社区居民忠实会员彩虹勋章

发表于 2020-5-30 14:35:03 | 显示全部楼层  IP 属地:中国–浙江–温州
好活动
回复

使用道具 举报

700

回帖

1782

威望

455

金币

高中三年级

发表于 2020-5-30 14:37:34 | 显示全部楼层  IP 属地:中国–浙江–温州
顶一个
回复

使用道具 举报

459

回帖

1321

威望

279

金币

高中二年级

发表于 2020-5-30 14:38:50 | 显示全部楼层  IP 属地:中国–浙江–温州
姚江怡景的效果图蛮好看的
回复

使用道具 举报

345

回帖

902

威望

243

金币

初中三年级

社区居民忠实会员

发表于 2020-5-30 14:39:48 | 显示全部楼层  IP 属地:中国–浙江–温州
萝卜炖肉 发表于 2020-5-30 14:38
姚江怡景的效果图蛮好看的

我也喜欢这个
回复

使用道具 举报

282

回帖

788

威望

221

金币

初中三年级

社区居民忠实会员

发表于 2020-5-30 14:40:21 | 显示全部楼层  IP 属地:中国–浙江–温州
回复

使用道具 举报

258

回帖

730

威望

175

金币

初中三年级

社区居民忠实会员

发表于 2020-5-30 14:41:03 | 显示全部楼层  IP 属地:中国–浙江–温州
星光御墅这个半包多少啊
回复

使用道具 举报

395

回帖

1164

威望

387

金币

高中一年级

社区居民忠实会员

发表于 2020-5-30 14:41:32 | 显示全部楼层  IP 属地:中国–浙江–温州
不错不错
回复

使用道具 举报

136

回帖

402

威望

137

金币

初中一年级

发表于 2020-5-30 14:42:00 | 显示全部楼层  IP 属地:中国–浙江–温州
才三户啊
回复

使用道具 举报

1970

回帖

5768

威望

1134

金币

大学四年级

圣诞帽社区居民忠实会员父爱如山

发表于 2020-5-30 14:42:27 | 显示全部楼层  IP 属地:中国–浙江–温州
有什么用啊
回复

使用道具 举报

686

回帖

1758

威望

352

金币

高中三年级

社区居民忠实会员

发表于 2020-5-30 14:42:55 | 显示全部楼层  IP 属地:中国–浙江–温州
还有这活动啊
回复

使用道具 举报

421

回帖

1249

威望

319

金币

高中二年级

社区居民忠实会员

发表于 2020-5-30 14:43:24 | 显示全部楼层  IP 属地:中国–浙江–温州
回复

使用道具 举报

550

回帖

1344

威望

265

金币

高中二年级

社区居民忠实会员

发表于 2020-5-30 14:44:00 | 显示全部楼层  IP 属地:中国–浙江–温州
这种面对面的比较好吧
回复

使用道具 举报

1599

回帖

4368

威望

585

金币

大学四年级

发表于 2020-5-30 14:44:26 | 显示全部楼层  IP 属地:中国–浙江–温州
回复

使用道具 举报

您需要登录后才可以回帖 登录 | 立即注册

本版积分规则

关闭

余姚论坛推荐上一条 /1 下一条

宁波市网络警察工作室 宁波市网络警察工作室

浙公网安备 33028102000108号

举报电话|反馈|Archiver|手机版|小黑屋|余姚论坛 ( 浙B2-20110426-4 )

GMT+8, 2025-11-3 07:48 , Processed in 0.081479 second(s), 12 queries , Redis On.

Powered by Discuz! X3.5

© 2001-2025 Discuz! Team.

快速回复 返回顶部 返回列表
下载明生活客户端
下载浙江政务服务客户端